Однокомнатная квартира 48,30 м2 по ул. Ярославский район деревня Полесье, Майский переулок,6 за 3599000 руб.

Однокомнатная квартира по ул. Ярославский район, деревня Полесье, Майский переулок,6 в Ярославле
Цена 3 599 000 р. (74 513 р./м2)
Подать заявку на ипотеку
Адрес Ярославский район, деревня Полесье, Майский переулок,6
Этаж 1/3
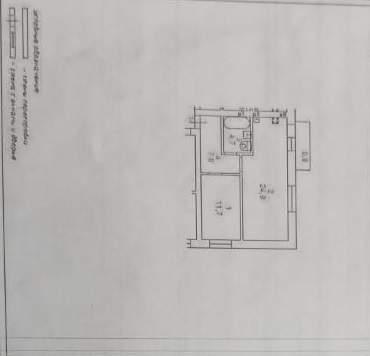
Площадь общая 48,3 м2, жилая 31,6 м2, кухни 6,3 м2
Кол-во комнат Однокомнатная
Арт. 79955028. Продажа от физ. лица (ипотека классическая, с/х) Быстрый выход на сделку Ключи в день сделки Реализуется уютная евро-двушка в Заволжском районе города Ярославля Направление д. Полесье, пер. Майский д. 4 Дом малоэтажный, парковки хватит на всех Квартира расположена на первом (высоком) этаже трёхэтажного дома Планировка свободная (просторная кухня-гостинная, спальная комната) , можно спланировать на своё усмотрение Отделки нет, зато можно сделать ремонт под себя По коммуникациям: электричество, газ, водоснабжение (ХВС) , канализация - центральные, отопление, горячее водоснабжение - индивидуальное (ИГО) Очень выгодное расположение дома. Вся необходимая инфраструктура расположена в непосредственной близости Так же, жилой комплекс расположен между двумя зелеными лесными массивами (чистый воздух, прогулки по лесу) До центра города Ярославля и в иные районы налажена транспортная логистика ---------------------------------------- ---------------------- Без комиссии для покупателя! ------------------------------------------------- ------------- 1. Больше информации по телефону и в форме чата. 2. Для иногородних клиентов оперативно покажем объект по видеосвязи. 3. Приглашаем посредников к сотрудничеству на выгодных условиях. 4. Если этот объект не понравился по фотографиям и описанию - обращайтесь, предложим альтернативу. 5. Фиксируем звонки в режиме 24/7, для Вашего удобства работает контакт-центр.
Описание дома
Этажность дома 3
Объявление № 23402901
Дата подачи:
16 октября 2025 г. 23:55
Дата обновления:
17 октября 2025 г. 1:28
Просмотров 15 Хотите продать быстрее?

Продавец
Петрова Эрика
Показать номер телефона
Пожаловаться
Комментарии:
Добавить